Innovative Technology Solutions
Delivering cutting-edge design services with global expertise and over 20 years of experience.
Technological Solutions
Developing essential software for our projects.
Life Space Design
Desing best less than best is not acceptable in our perspective. Living area, working area, shopping center, production area, and more...


Idea/tech Development
We are also working about more technological ideas and projects.


Innovative Life Space Solutions
Design living space, working space, shopping centers, airports........ with AI based tech. and with exceptional team.


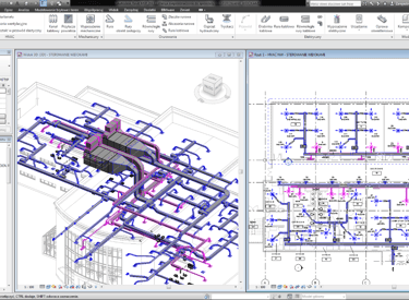
Creating Parametric Models:
As a working BIM concept, we can create and handle all families and parametric models. We can build our library and use these in our projects, we can set and get all information and can make unique as project as each job.


Less mistake
BIM base project design and management can help for the reduce lost, with software base support we can do more reduce lost.




Managment Power
Software and experience support to project, we can control more accurate and work with exact information.
Reducing Lost
Each project has losses, experience can reduce losses but software support to experience made more reduce losses.


Interdisciplinary Coordination
We aim for error-free assembly with interdisciplinary coordination. The service we provide aims to minimize the disassembly of manufacturing and installing stage.


Bill of Quantities
Thanks to features of BIM software and its customization ability, we can customize and make it unique project through coding, as resulting of quantities is fast, precise and project-specific result.




Project Management
Project management is most important part of the project; several team and disciplines must work good coordination. As we are already doing project management with several teams in different countries. This shows our experience and capabilities.
Revit Family
We can create our library and use these in our models; we can set and get all information and can make unique project as customer request.
Our More Services and Solutions
We deliver cutting-edge technology design for global markets.


Our Services
Architectural. Fire Fighting Systems. HVAC Systems. Domestic Water Systems. Industrial Systems. Electrical Systems. Creating Object and Families. Technical Office Supports.


Technical Office Services & Management
Preparation of required drawings and documents for progress of payments progress. Followed up disassembly and revision work and reflect them in progress of payment progress. It can be followed up from the schedule or documents and from model too, our management systems make it easy for the follow this progress.




Working with Dynamo
We are using dynamo for support increase our quality of work.
From 2D AutoCAD drawing to 3D Revit Model
We can transform all kind of CAD drawing to Revit model with specific information's, after this period BoQ, other schedule and documents will be more precise and accurate.
